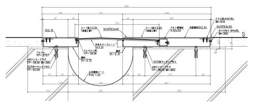
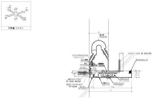
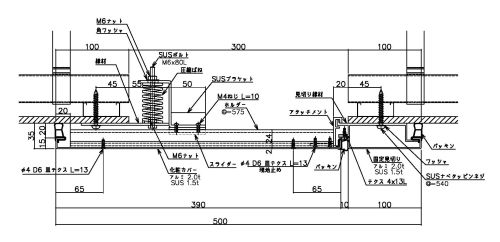
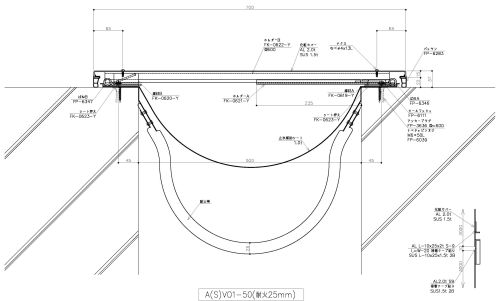
Select part
| Floor | Interior use | |
|---|---|---|
| Exterior use | ||
| Interior wall | ||
| Ceiling | ||
| Exterior wall | ||
| Roof |
Select material
Clearance
Fire Barrier
V Series
[How to Search/Download]
1. All the V Series data is displayed.
2. You can search by product number or name.
3. The search can be narrowed down by part, material, clearance, and fire barrier type.
4. From the displayed data, click the checkbox of the product data you want to download.
5. Select the data type from the options shown in the right-hand box and click the [Download] button.
- *1 Of the floor types, ○○○○-○○2 is used when joining Type 2 and Type 1.
- *2 Exterior wall auxiliary materials are used when joining Type 1 and Type 2.
For more information on how to use the two mentioned above, please refer to the product description page.
[System Requirements]
We recommend using Chrome, Internet Explorer 11 or later, or Microsoft Edge.
[Copyright and Disclaimer]
All CAD data here is the property of UACJ Metal Components Corporation.
For more information, see here.
0/757






















































































































































































































































































































































































































































































































































































































































































































































































